Applicazione
Interno
Location
Milano
Contractor
CGA Capital
Design
Matteo Fantoni Studio
Superficie totale
400m2
Anno
2016
Home / Progetti / Contract /
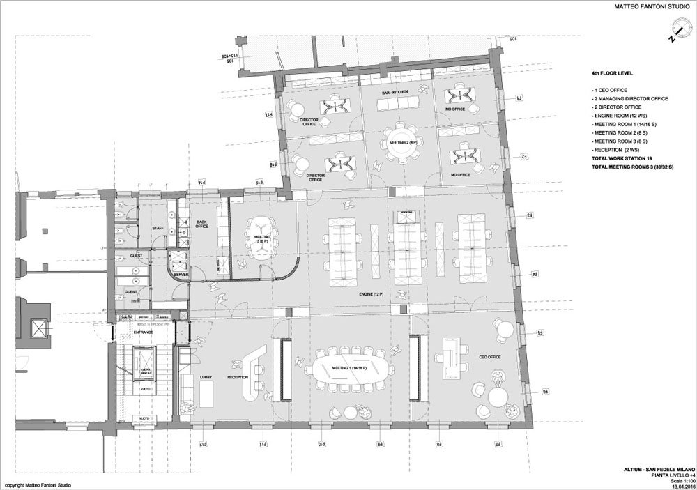
realizzazione delle opere di ristrutturazione della nuova sede direzionale milanese di cga altium, importante multinazionale del settore della finanza.
area intervento
- Pavimenti sopraelevati Nesite Tetris Floor
- Pareti divisorie in cartongesso
- Controsoffitti acustici
- Rivestimenti dei bagni
- Rasature e tinteggiature
- Tende motorizzate a rullo a scomparsa
realizzazione
Nesite Contract ha realizzato le opere di completamento degli spazi uffici di questo prestigioso progetto Matteo Fantoni Studio.
L’utilizzo del sistema di pavimentazione sopraelevata a secco Tetris Floor ha consentito la massima libertà nella scelta della finitura superiore, in questo caso parquet in doghe. Per garantire l’accessibilità al sottopavimento, sono state realizzate in opera delle botole di ispezione su misura, per consentire l’incollaggio del parquet sulle stesse e l’effetto a scomparsa all’interno del pavimento finito.
Il team di Nesite Contract ha realizzato tutte le opere in cartongesso per la protezione e l’isolamento acustico degli impianti, per la predisposizione dell’inserimento dei mobili e delle tende motorizzate a rullo, con particolare attenzione all’alloggiamento dell’impianto illuminotecnico.
Massima attenzione è stata data all’isolamento acustico per soddisfare l’esigenza di privacy assoluta del cliente; sono stati forniti e installati setti acustici a pavimento e a soffitto, dove è stato poi installato un controsoffitto in cartongesso microforato acustico.
Oltre ad un’attenta selezione di materiali di prima qualità, Nesite Contract ha curato l’installazione di tutti gli elementi con estrema cura dei dettagli, per un risultato di altissimo livello.



