Applicazione
Interno
Location
Veneto
Contractor
Studio Medico Dentistico
Superficie totale
110m2
Anno
2016
Home / Progetti / Contract /
Uno studio medico che si ispira allo stile di un loft newyorkese: presentiamo l’intervento di Nesite Contract per il progetto di ristrutturazione di uno spazio commerciale a Padova realizzato da B_LIVE Studio Associato
area intervento
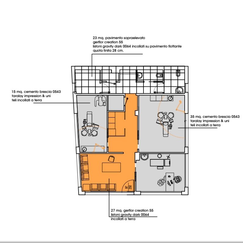
L’intervento di Nesite Contract ha interessato principalmente la pavimentazione di tutto lo studio.
Fornitura e installazione:
– Pavimento in pvc in doghe effetto legno nell’ingresso e nelle zone comuni
– Pavimento in pvc grigio effetto cemento per le sale operatorie
– Sistema Tetris Floor rivestito con il pvc in doghe effetto legno per i locali di servizio
realizzazione
L’obiettivo di questo intervento era trasformare un vecchio negozio in un ambiente moderno e funzionale, che rispecchiasse la spiccata personalità del committente.
Ogni scelta rappresenta uno stile ben deciso: dai serramenti alla francese alle scritte al neon che richiamano lo stile del loft newyorkese, scelti direttamente dal cliente, all’illuminazione con tagli di luce con effetto minimal, alla carta di arredo che riveste le pareti per dare una connotazione decisa all’ambiente.
Così uno studio medico dentistico diventa un ambiente di design, pur rispettando i criteri di funzionalità che devono tener conto delle esigenze impiantistiche e delle normative vigenti.
“Anche la scelta di tenere a vista l’area di sterilizzazione dei materiali” – sottolinea l’arch. Sara Scattolin, direzione lavori – è stata voluta per evidenziare l’attenzione all’igiene e alla sicurezza, aspetti fondamentali per uno studio medico-dentistico”.
Il pavimento fornito e installato da Nesite Contract, infine, è un altro elemento di arredo che caratterizza le varie zone dello studio: il vinile in doghe effetto legno è stato scelto per le zone comuni, per creare un ambiente moderno ed un’atmosfera accogliente; nelle sale operatorie, invece, è stato selezionato un vinile grigio ma anche qui è stata selezionata una finitura di design effetto cemento. Il sistema Tetris floor, infine, è stato installato nei locali di servizio per consentire il passaggio degli impianti sotto pavimento, pur mantenendo la stessa finitura in doghe effetto legno delle zone comuni.














